已有 128 位用户今日成功获取报价
高标准、科学改装,保证车辆具有优良可靠性能
1、车体改装符合国家和行业相应标准;
2、改装后整车各项主要性能指标不低于原车性能指标;
3、根据汽车底盘(轴距、承载、额定总重)和用户需求对整车进行优化布局设计,确保轴荷分配及左右配重应合理,同时保证具有最大的工作空间,各功能区的设计科学、合理,避免工作时出现相互交叉影响;
4、整车设计使用年限在10年以上,车体各部做相应的防锈、防腐蚀处理。
5、车体改造完成后进行整车性能测试,如行驶试验、载荷平衡测试、淋雨测试等,确保整车性能符合设计要求;
1、改装原材料采用符合相关标准并通过“CCC”质量认证的材料,各种材料具有无污染、绿色环保材料、防火/防水材料;胶为汉高无苯胶;各项性能符合相应材料标准;车外螺钉、螺母、垫片等紧固件全部选用不锈钢1Cr18Ni9Ti材料,铆钉可采用铝铆钉;车顶平台骨架采用矩管电泳处理;车顶平台采用铝合金花纹板;车外喷涂与原车相同的金属漆。
2、全车采用防火材料,保证车辆的防火性能;
3、所有改装用的胶、漆、板材全部采用环保材料,保证车内环境质量;4、改装不改变整车配重及重心,保证车辆的侧向稳定性和刹车性能;
1、为确保整车性能,在整车设备选用时,我们在确保质量的前提下,尽量采用重量轻的设备及材料,以减小整车的重量。在进行总体布置时,我们对整车设备进行了合理的布置,注意前、后轴的轴荷分配比例及左右两侧的重量平衡,并进行校核,确保前后轴荷在厂家规定的范围内。
2、设计采用全3D数模设计并运用科学合理仿真手段确保我们的车厢耐用稳固: 3、仿真及有限元分析确保车厢顶部负载2吨及侧碰撞负载1.5吨时车厢骨架相对变形量符合相关法规标准,确保厢内设备的防护及乘员安全。
|
项目 |
详细配置参数 |
品牌 |
单位 |
数量 |
|
底盘 |
重汽ZZ5187XXYN711GF1 |
豪沃 |
辆 |
1 |
|
厢体 |
通风天窗 |
程力定制 |
套 |
2 |
|
抽拉梯 |
程力定制 |
套 |
1 | |
|
出入门 |
程力定制 |
套 |
1 | |
|
外推窗 |
程力定制 |
套 |
6 | |
|
专用功能系 统 |
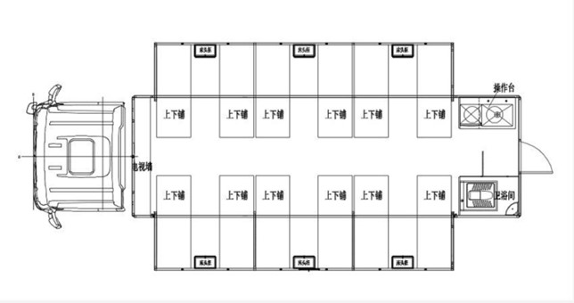
折叠床 |
程力定制 |
套 |
24 |
|
床头柜 |
程力定制 |
套 |
6 | |
|
卫浴间 |
程力定制 |
套 |
1 | |
|
电视柜 |
程力定制 |
套 |
1 | |
|
配电系统 |
发电机 |
程力定制 |
个 |
1 |
|
空调 |
程力定制 |
个 |
2 | |
|
液体加热器 |
程力定制 |
套 |
1 | |
|
液晶电视 |
程力定制 |
个 |
1 | |
|
充电逆变一体机 |
程力定制 |
个 |
1 | |
|
双电源自动转换器 |
程力定制 |
个 |
1 | |
|
蓄电池 |
程力定制 |
个 |
2 | |
|
电动绞盘 |
程力定制 |
个 |
1 | |
|
便携式卷线盘 |
程力定制 |
个 |
1 | |
|
外接航空插头 |
程力定制 |
套 |
1 | |
|
卫浴间换气扇 |
程力定制 |
套 |
1 | |
|
辅助系统 |
360行车记录仪 |
程力定制 |
套 |
1 |
|
车载电台 |
程力定制 |
套 |
1 | |
|
警灯 |
程力定制 |
套 |
1 | |
|
防雷接地系统 |
程力定制 |
套 |
1 | |
|
避雷针 |
程力定制 |
个 |
1 | |
|
水路系统 |
500L净水箱 |
程力定制 |
个 |
1 |
|
200L污水箱 |
程力定制 |
个 |
1 | |
|
水泵 |
程力定制 |
台 |
1 |
